Welcome to Charmouth House Short Stays In Alban's
A branDimming lightsd new 4-bedroom family home with
garden and an outhouse. The bespoke design
incorporates state of the art technology and
architecture.
The house has been constructed using insulated
concrete formwork (ICF), which offers superior
insulating properties. The property also benefits
from solar panels,
The resin drive has space for 2 cars, with brick
wall lights creating a warm and inviting
entrance to the property. There is an eye-
catching RK pivot glass front door and the
frameless windows allow maximum light
through, along with a view of the park opposite.
Inside the front door, the feature wall, granite
steps with lighting and an overlooking frameless
glass balcony combine to create an attractive 2-
storey entrance.
The house is fitted with the market-leading Creston Smart Home Integration System, featuring the following:
- CCTV with 3TB storage and HDTV distribution to all rooms
- Touch keypads in all rooms
- Temperature and humidity sensors in
all bathrooms and bedrooms - Multi-room TV
- Multi-room audio
- Dimming lights
- Smart blinds
- Multi-zones for complete control of
the temperature in all areas
All controls are found in the Smart House cupboard. The cloak room and WC has a Burgbad Vanity Unit, Grohe & Duravit WC pans.
The entire property benefits from a Heat Recovery Mechanical Ventilation system constantly bringing in fresh air.
The main kitchen is a Zeyko kitchen which was internationally showcased in 2018. Features include:
- Sensematic open door system
- Zuc Steam oven alongside traditional
- Pocket doors
- Blum electric opening system
- Dishwasher Gaggenice
- Kitchen Liberner
- Stainless steel work top
The adjacent utility room has an additional Howdens kitchen, washer dryer , and access to the outside. The main kitchen leads into the patio garden.
On the first floor, there is an en-suite master bedroom, 2 additional bedrooms and a family bathroom.
The spacious master bedroom has bi-fold doors. The master bathroom contains a Dorn Bracht rain shower with 100+ jets and an Italian designer vanity unit.
All bedrooms benefit from:
- Smart blinds
- Underfloor heating
- Multi-room sound
- Multi-zone heating
- HRMV
- Ipad controls
- Porcelain tiles & underfloor heating throughout
The family bathroom has a Betty Whirlpool jacuzzi bath and anti-mist glass cabinets that has a lovely feature that warms up. All bathrooms have cross water taps and Duravit pans.
The loft space has a purpose-built 4th bedroom with en-suite containing a Duravit resin bath. This top floor has amazing views.
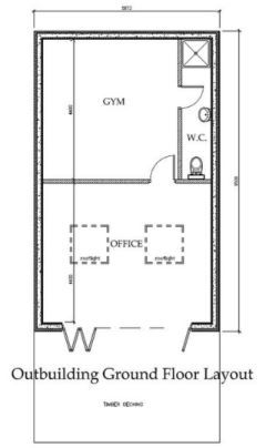
The spectacular garden at the back of the house boasts water features, an outdoor jacuzzi, timber decking rendered walls, and structured plants
There is a multipurpose outhouse towards the rear of the property that benefits from surround sound audio and underfloor heating. It has a Howdens kitchen fitted, a fully functional bathroom with shower.
Behind the outhouse, there is additional storage space.
